Til leje 9.950 kr./mdr. - 3 værelses lejlighed
Nyopførte lejemål i flotte og moderne boligkomplekser
Admiralen 12, 1. th., 5792 Årslev (se på kort)
Moderne og lys 4-værelses lejlighed med egen altan i en skøn oase midt i Årslev.
Ejendommen er opført med fokus på bæredygtighed, fællesskab og arkitektonisk variation. Facaderne består af varmebehandlet træ, hvilket understøtter den grønne profil.
Ejendommene opføres som en del af Fremtidens Forstad i Årslev, syd for Odense beliggende i naturskønne omgivelser omkring Vindinge Å. Der er derudover kort afstand til indkøb, institutioner og sportsfaciliteter.
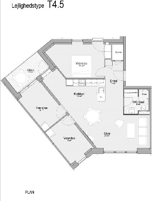
Lejligheden består af entré, badeværelse, et værelse med to skabe, to værelser med ét skab, en dejlig stue med et stort vinduesparti, der giver masser af lys og et lyst køkken med direkte udgang til egen altan. Alle altaner vender ind mod gårdrummene.
Der er opvaskemaskine samt køle/fryseskab i køkkenet.
Lejer sørger selv for vaskemaskine og tørretumbler. Der er klargjort til montering.
Vi forventer at have to prøveboliger klar i juli 2026. Her vil der være mulighed for at se hvordan boligerne er indrettet samt se materialevalgene. Det er desværre ikke muligt at komme ind og se et specifikt lejemål.
Visualiseringsbillederne er for at vise standarden på lejemålet og er dermed ikke fra det specifikke lejemål.
Vi udarbejder gerne en lejekontrakt, hvis du vil være sikker på at få et specifikt lejemål. Vi reserverer desværre ikke.
Praktisk info:
El, vand og varme opkræves direkte af de pågældende forsyningsselskaber.
Adgang til:
Der er mulighed for gratis parkering efter først-til-mølle-princippet.
Hvert lejemål har eget tilhørende depotrum.
Der er adgang til elevator i ejendommen.
Fælleshus/selskabslokale/gæstehus mod betaling.
El-ladestander mod betaling.
Information om lejemålet
- Husleje: 9.950 kr./mdr.
- Depositum: 29.850 kr.
- Forudbetalt leje: 9.950 kr.
- A conto: 0 kr.
- Overtagelsesdato: 01/04/2027
- 3 værelses lejlighed
- Husdyr: Nej
- Opvaskemaskine








