Til leje 10.645 kr./mdr. - 4 værelses lejlighed
Nyopført 4-værelses rækkehus med egen terrasse og have.
Vesterrisvej 19, 5750 Ringe (se på kort)
I Ringe, omgivet af natur og behagelig atmosfære, ligger dette nyopførte rækkehus. Her bor du fredeligt og grønt, men stadig tæt på alt det vigtige. Der er kort til nærmeste dagligvarebutik, og både skole, institutioner og offentlig transport er inden for gåafstand. Området har desuden både fodboldbane og legeplads – oplagt til både hverdag og fritid.
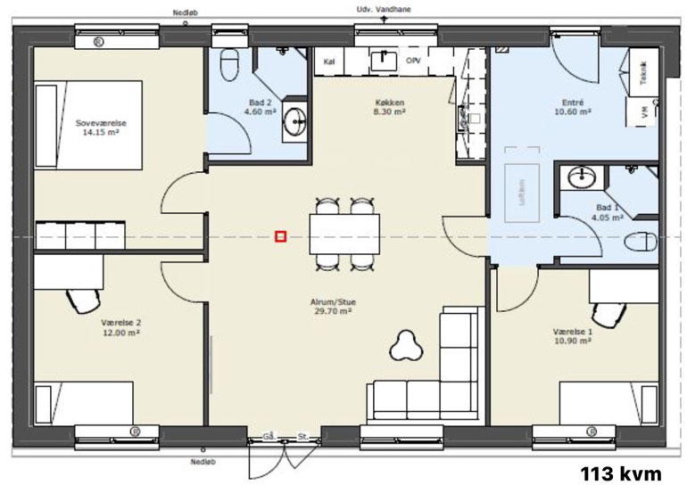
Lejemålet fremstår lyst og indbydende. Entréen tager venligt imod, og det store køkken-alrum skaber et naturligt samlingspunkt. De tre værelser er skønne og kan bruges som soveværelse, børneværelse eller kontor. Badeværelset er moderne og lækkert. Hjemmet er udstyret med køle-/fryseskab, indbygningsovn, emhætte og opvaskemaskine – alt sammen med til at gøre hverdagen nem.
Udenfor får du din egen terrasse og have. Her er der plads til ro, sol og hyggelige stunder under åben himmel. Der er desuden en carport til lejemålet.
Praktisk info:
– Der kan gives dispensation til én hund.
– Vand, varme, el og antenne opkræves direkte fra de pågældende forsyningsselskaber.
– Indretningen kan variere fra lejemål til lejemål.
– Lejer skal selv sørge for vaskemaskine og tørretumbler hvis dette ønskes.
Adgang til:
– Eget depotskur på ca. 5 m2
– Parkeringsområde dog først til mølle
Information om lejemålet
- Husleje: 10.645 kr./mdr.
- Depositum: 31.935 kr.
- Forudbetalt leje: 10.645 kr.
- A conto: 0 kr.
- Overtagelsesdato: 01/03/2026
- 4 værelses lejlighed
- Husdyr: Nej
- Depotrum
- Egen have
- Terrasse/Altan
- Opvaskemaskine



