Stop for henvendelser 11.825 kr./mdr. - 4 værelses lejlighed
Dejligt 4-værelses rækkehus i Odense SV
Sanderumvej 136P, 5250 Odense SV (se på kort)
Lejemålet ligger på Sanderumvej i Odense SV, i et fredeligt og familievenligt kvarter med grønne omgivelser og gode faciliteter. Her bor du tæt på både indkøb og natur, med nem adgang til offentlig transport og kort afstand til Sanderumskolen. Området er præget af velholdte ejendomme og en behagelig atmosfære, hvor hverdagen glider let og trygt.
Lejemålet er i forbindelse med andre rækkehuse med egen parkering, og udgang til privat terrasse samt adgang til en fælles parklignende have. Boligen fremstår lys og indbydende med en varm atmosfære og indeholder en dejlig rumfordeling.
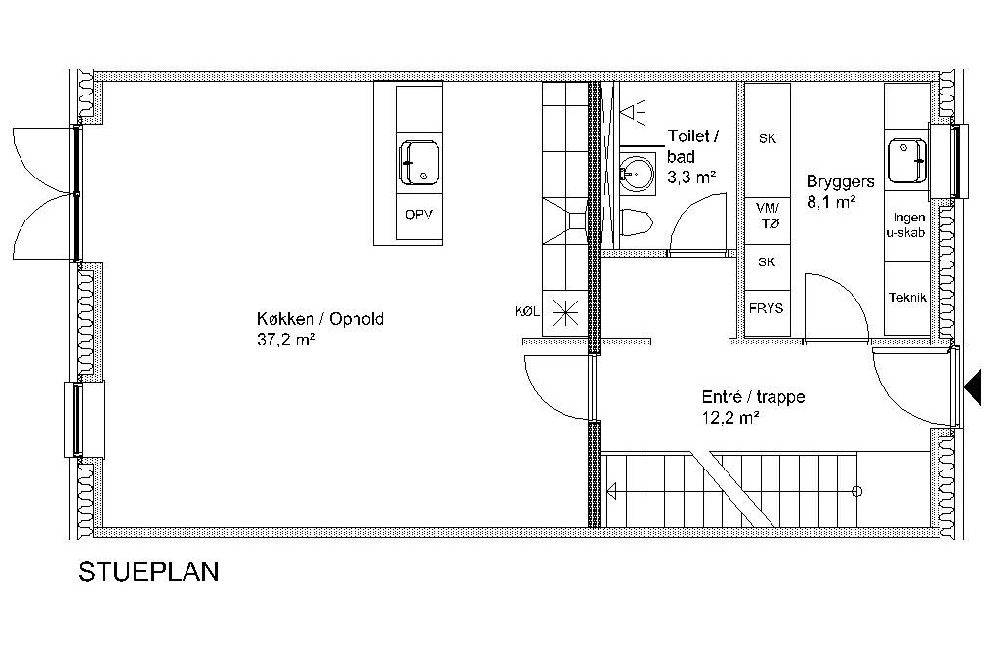
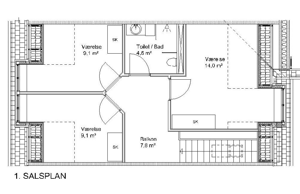
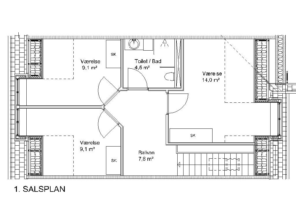
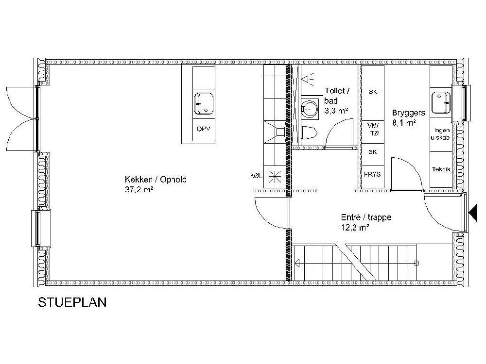
Lejligheden indeholder:
Stueetagen: entre med trappe til 1. sal, bryggers med bl.a. fryseskab og vaske/tørremaskine, køkken/alrum med alt i hårde hvidevarer og gæstetoilet.
1. salen: balkon, badeværelse med brus, soveværelse samt 2 værelser med indbyggede skabe.
Derudover er der installeret gulvvarme i lejemålet, for at gøre det hele lidt ekstra lækkert.
Praktisk info:
– El, antenne, vand og varme betales direkte til de pågældende forsyningsselskaber.
– Lejemålet ønskes ikke benyttet til bofællesskab.
Adgang til:
– Ladestander til el-biler og hybridbiler
– Depotrum
Information om lejemålet
- Husleje: 11.825 kr./mdr.
- Depositum: 35.475 kr.
- Forudbetalt leje: 11.825 kr.
- A conto: 0 kr.
- Overtagelsesdato: RESERVERET
- 4 værelses lejlighed
- Husdyr: Nej
- Egen have
- Terrasse/Altan
- Mikroovn
- Opvaskemaskine
- Vaskemaskine
- Tørretumbler



